Проект торгово-складского комплекса
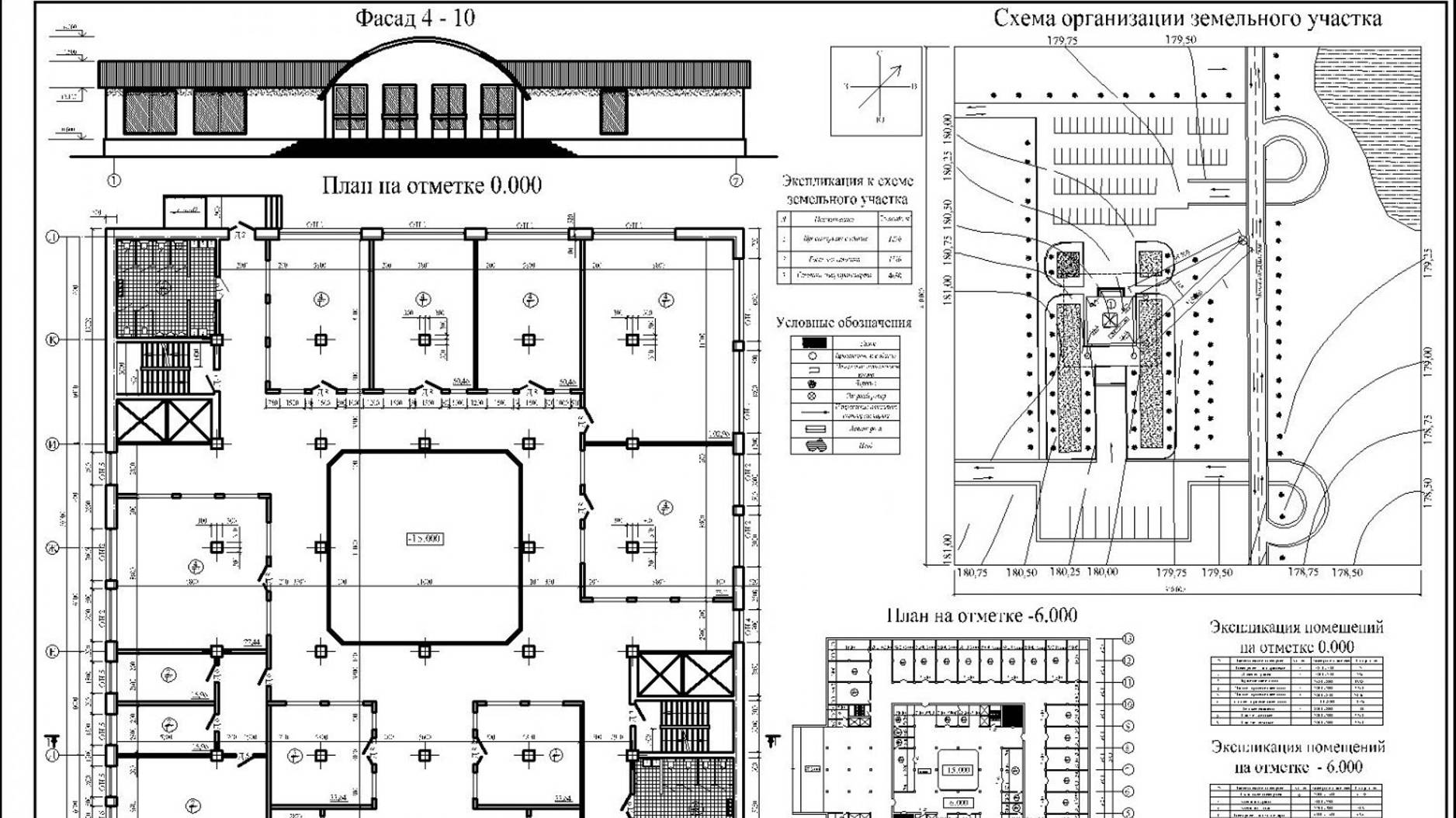
Многофункциональный торгово-складской комплекс Дипломный проект с расчетами и чертежами можно скачать со страницы - https://www.2d-3d.ru/2d-galereia/arhitektura_obsh_prom/9446-mnogofunkcionalnyj-torgovo-skladskoj-kompleks.html Исходные данные: 1. Место строительства – посёлок Северный Московской области. 2. Проектируемое здание является общественным 3. Степень долговечности – II (50 – 100 лет). 4. По огнестойкости здание относится ко II степени (каменное здание). 5. По этажности – многоэтажное. 6. По способу возведения – здание индустриальное. 7. Наружные стены – монолитные, железобетонные, внутренние – монолитные, железобетонные. 8. Колонны – монолитные, железобетонные. 8. Перекрытия – монолитные, железобетонные. 9. Перегородки – монолитные, железобетонные. 10. Лестница – монолитная, железобетонная. 11. Крыша – малоуклонная 12. Покрытие – рулонные материалы (изопласт) Список чертежей: 1. Стройгенплан, разрез 1-1, ведомость объемов, схемы строповок и складирования 2. Календарный план производства работ, график движения рабочих, график движения машин и механизмов 3. Схемы армирования фундаментной плиты, армокаркас буросекущейся сваи, разрезы, спецификации, расчетные схемы 4. Разрез 1-1, разрез 2-2, план кровли, план фундаментной плиты, план перекрытия, конструктивные узлы сопряжений 5. Фасад, планы этажей, генплан, условные обозначения, экспликация 6. Схема производства работы, калькуляция затрат труда, график производства работ, схемы операционного контроля качества, технико-экономические показатели #Чертёж #Dwg #cdw #AutoCAD #Чертежи #Автокад #Проекты #Компас #Расчёты #Зданиепроект #Проектздания #здание #проектсклада #Проект #Чертеж #Dwg #Dwgформат #диплом #drawing #расчет #фасад #курсоваячертежи #склад #разрезздания #проектздания #архитектура #торговый #торговыйкомплекс #комплекс 2d-3d.ru
Многофункциональный торгово-складской комплекс Дипломный проект с расчетами и чертежами можно скачать со страницы - https://www.2d-3d.ru/2d-galereia/arhitektura_obsh_prom/9446-mnogofunkcionalnyj-torgovo-skladskoj-kompleks.html Исходные данные: 1. Место строительства – посёлок Северный Московской области. 2. Проектируемое здание является общественным 3. Степень долговечности – II (50 – 100 лет). 4. По огнестойкости здание относится ко II степени (каменное здание). 5. По этажности – многоэтажное. 6. По способу возведения – здание индустриальное. 7. Наружные стены – монолитные, железобетонные, внутренние – монолитные, железобетонные. 8. Колонны – монолитные, железобетонные. 8. Перекрытия – монолитные, железобетонные. 9. Перегородки – монолитные, железобетонные. 10. Лестница – монолитная, железобетонная. 11. Крыша – малоуклонная 12. Покрытие – рулонные материалы (изопласт) Список чертежей: 1. Стройгенплан, разрез 1-1, ведомость объемов, схемы строповок и складирования 2. Календарный план производства работ, график движения рабочих, график движения машин и механизмов 3. Схемы армирования фундаментной плиты, армокаркас буросекущейся сваи, разрезы, спецификации, расчетные схемы 4. Разрез 1-1, разрез 2-2, план кровли, план фундаментной плиты, план перекрытия, конструктивные узлы сопряжений 5. Фасад, планы этажей, генплан, условные обозначения, экспликация 6. Схема производства работы, калькуляция затрат труда, график производства работ, схемы операционного контроля качества, технико-экономические показатели #Чертёж #Dwg #cdw #AutoCAD #Чертежи #Автокад #Проекты #Компас #Расчёты #Зданиепроект #Проектздания #здание #проектсклада #Проект #Чертеж #Dwg #Dwgформат #диплом #drawing #расчет #фасад #курсоваячертежи #склад #разрезздания #проектздания #архитектура #торговый #торговыйкомплекс #комплекс 2d-3d.ru
