Смеситель с Z-образной мешалкой чертежи и расчеты в учебном проекте
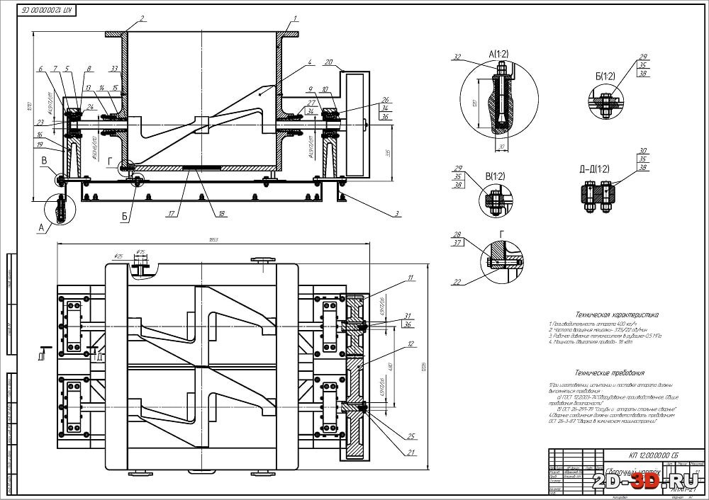
Описание материала с сайта 2d-3d.ru по адресу https://www.2d-3d.ru/2d-galereia/rastvorosmesiteli/5441-smesitel-s-z-obraznoy-meshalkoy.html В курсовом проекте рассчитан смеситель для процесса карбоксиметилирования целлюлозы. Произведён технологический расчёт, в результате которого определены основные размеры смесителя. Проведён тепловой расчёт, а также расчёт зубчатой передачи. Производительность смесителя G = 400 кг/ч Влажность материала W = 40 % Плотность перемешиваемой среды 1590 кг/м3 Насыпная плотность 700 кг/м3 Температура хладагента начальная 12 °C Температура хладагента конечная 15 °C Температура массы начальная 45 °C Температура массы конечная 40 °C Частота вращения мешалок 37.5 / 22 об/мин; Время перемешивания 25 мин Мощность электродвигателя 18 кВт Список чертежей: Чертёж смесителя с z-образной мешалкой со спецификацией Вал Задвижка Зубчатое колесо Стенка Исходные данные Содержание курсового проекта Введение 1. Литературный обзор 1.1 Лопастные смесители. Общие сведения 1.2 Принцип работы лопастного смесителя 1.3 Лопастные валы 2. Технологический расчёт 2.1 Исходные данные 2.2 Определение геометрических размеров смесителя 2.3 Расчёт мощности, затрачиваемой на перемешивание 2.4 Тепловой расчёт 2.5 Расчёт зубчатой передачи 2.5.1 Выбор материала шестерней 2.5.2 Предварительные основные размеры колеса 2.5.3 Определение модуля передачи 2.5.4 Расчёт числа зубьев зубчатых колёс 2.5.5 Диаметры колёс 2d-3d.ru
Описание материала с сайта 2d-3d.ru по адресу https://www.2d-3d.ru/2d-galereia/rastvorosmesiteli/5441-smesitel-s-z-obraznoy-meshalkoy.html В курсовом проекте рассчитан смеситель для процесса карбоксиметилирования целлюлозы. Произведён технологический расчёт, в результате которого определены основные размеры смесителя. Проведён тепловой расчёт, а также расчёт зубчатой передачи. Производительность смесителя G = 400 кг/ч Влажность материала W = 40 % Плотность перемешиваемой среды 1590 кг/м3 Насыпная плотность 700 кг/м3 Температура хладагента начальная 12 °C Температура хладагента конечная 15 °C Температура массы начальная 45 °C Температура массы конечная 40 °C Частота вращения мешалок 37.5 / 22 об/мин; Время перемешивания 25 мин Мощность электродвигателя 18 кВт Список чертежей: Чертёж смесителя с z-образной мешалкой со спецификацией Вал Задвижка Зубчатое колесо Стенка Исходные данные Содержание курсового проекта Введение 1. Литературный обзор 1.1 Лопастные смесители. Общие сведения 1.2 Принцип работы лопастного смесителя 1.3 Лопастные валы 2. Технологический расчёт 2.1 Исходные данные 2.2 Определение геометрических размеров смесителя 2.3 Расчёт мощности, затрачиваемой на перемешивание 2.4 Тепловой расчёт 2.5 Расчёт зубчатой передачи 2.5.1 Выбор материала шестерней 2.5.2 Предварительные основные размеры колеса 2.5.3 Определение модуля передачи 2.5.4 Расчёт числа зубьев зубчатых колёс 2.5.5 Диаметры колёс 2d-3d.ru
