Реконструкция АТП производственного корпуса предприятия дипломная работа с расчетами и чертежами
Материал можно скачать на странице - https://www.2d-3d.ru/2d-galereia/proektirovanie_predpriatii/9374-rekonstrukcija-zony-to-i-r-atp-s-razrabotkoj-ustanovki-dlja-mojki-detalej.html Реконструкция АТП производственного корпуса предприятия дипломная работа с расчетами и чертежами в редактируемом формате .cdw Компас-3D В данной дипломной работе была выполнена реконструкция АТП производственного корпуса предприятия. Дана краткая характеристика предприятия, представлена таблица основных технико-экономических показателей, выполнены исследования автотранспортного парка и производственной базы. Дана характеристика существующей организации ТО и ремонта на предприятии, также выполнены необходимые расчеты в организационной и экономической частях, предложены решения по реконструкции предприятия и выполнены чертежи в программе Компас-3D. #Чертёж #Dwg #cdw #AutoCAD #Чертежи #Автокад #Проекты #Компас #Расчёты #АТП #Ремонт #зАвто #Дипломный #Проект #Чертеж #Dwg #Dwgформат #диплом #drawing #расчет #Машины #Студенты #курсовая #курсовой #ВКР #Диплом #Дипломнаяработа #Сервис #учёба #Студент #схема #схемы #Техобслуживание #Автосервис 2d-3d.ru
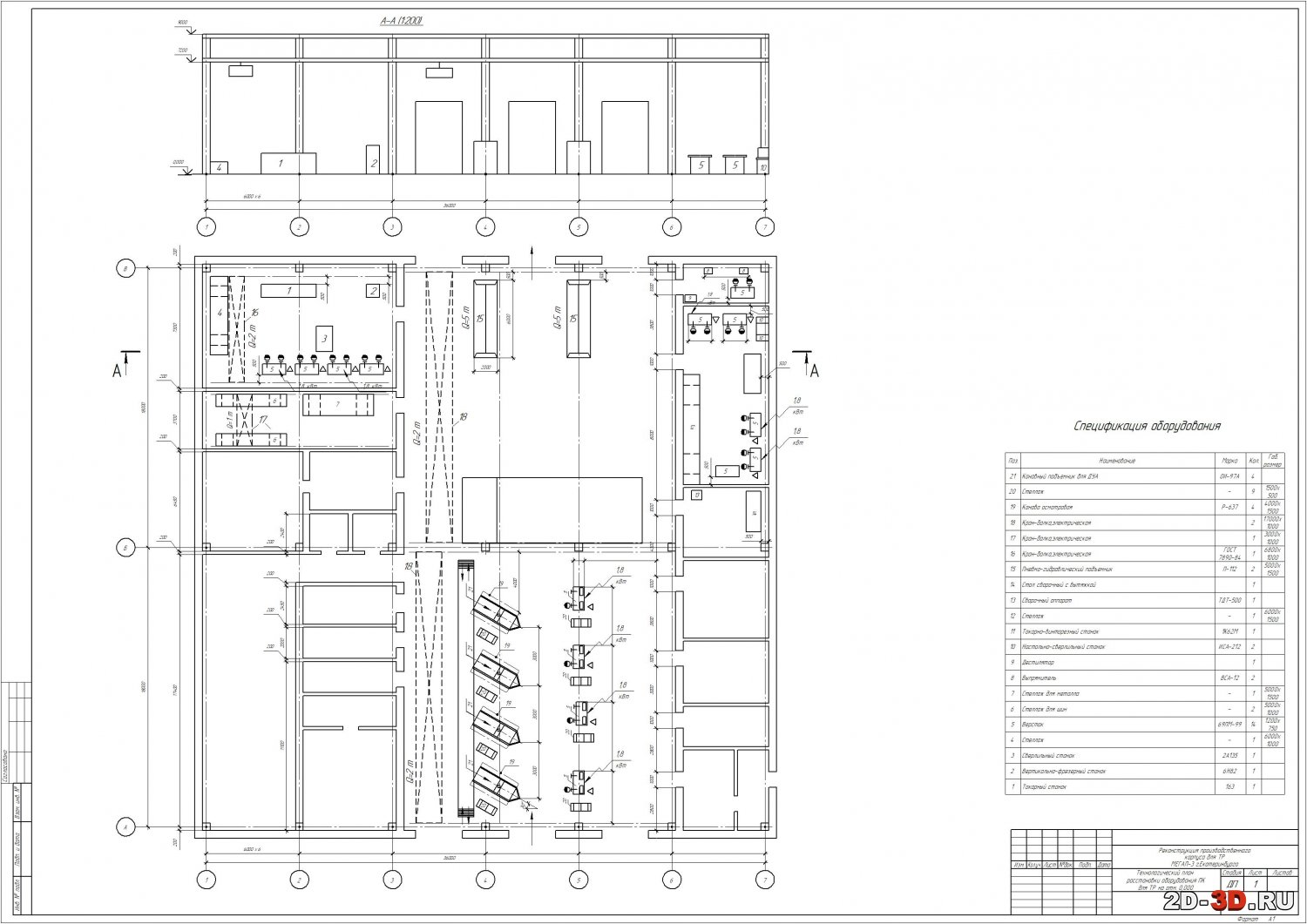
Материал можно скачать на странице - https://www.2d-3d.ru/2d-galereia/proektirovanie_predpriatii/9374-rekonstrukcija-zony-to-i-r-atp-s-razrabotkoj-ustanovki-dlja-mojki-detalej.html Реконструкция АТП производственного корпуса предприятия дипломная работа с расчетами и чертежами в редактируемом формате .cdw Компас-3D В данной дипломной работе была выполнена реконструкция АТП производственного корпуса предприятия. Дана краткая характеристика предприятия, представлена таблица основных технико-экономических показателей, выполнены исследования автотранспортного парка и производственной базы. Дана характеристика существующей организации ТО и ремонта на предприятии, также выполнены необходимые расчеты в организационной и экономической частях, предложены решения по реконструкции предприятия и выполнены чертежи в программе Компас-3D. #Чертёж #Dwg #cdw #AutoCAD #Чертежи #Автокад #Проекты #Компас #Расчёты #АТП #Ремонт #зАвто #Дипломный #Проект #Чертеж #Dwg #Dwgформат #диплом #drawing #расчет #Машины #Студенты #курсовая #курсовой #ВКР #Диплом #Дипломнаяработа #Сервис #учёба #Студент #схема #схемы #Техобслуживание #Автосервис 2d-3d.ru
