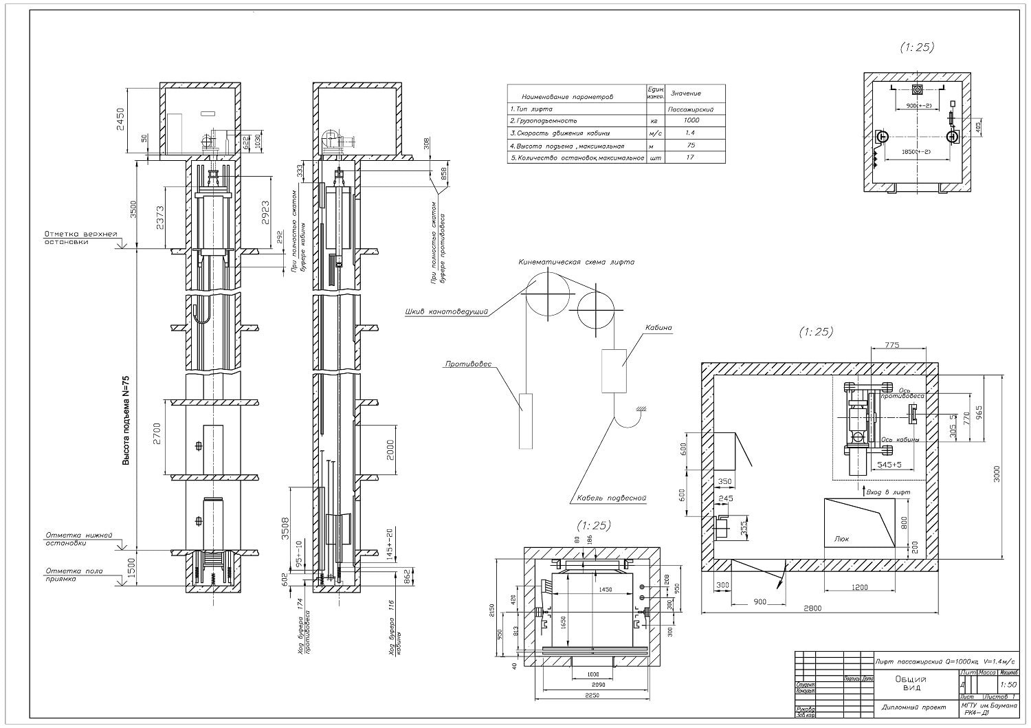
Чертежи и расчёты лифта пассажирского грузоподъемностью 1000 кг и скоростью 1,4 м/с в дипломе
Скачать готовый проект можете со страницы - https://www.2d-3d.ru/2d-galereia/lift/318-lift-passazhirskij-1000-kg-i-skorostyu-14-ms.html Чертежи и расчёты лифта пассажирского грузоподъемностью 1000 кг и скоростью 1,4 м/с в дипломе Дипломный проект «Лифт пассажирский Q=1000 кг, V=1,4 м/с» Чертежи и расчёты, описание конструкции. Все файлы в редактируемых форматах Автокада и ворда. 110 листов расчётно-пояснительной записки и 11 листов с чертежами. Техническая характеристика лифта с чертежей: Тип пассажирский Грузоподъёмность 1000 кг Скорость движения кабины 1,4 м/с Максимальная высота подъёма лифта 75 м Количество этажей 17. Оригиналы чертежей выполнены в AutoCAD и дополнительно сохранены в Компас. Наименование чертежей входящих в состав дипломного проекта: Содержание расчётно-пояснительной части дипломного проекта: Введение. Проектная часть Конструкторская часть Общий расчет лифта Тяговый расчет лифта Динамический расчет лифта Расчет лебедки лифта Расчет ловителей. Расчет масляного буфера кабины. Расчет механизма привода дверей и дверей шахты. Расчет подвески. Электрическая часть. Выбор электродвигателя Описание принципиальной электрической схемы лифта. Технологическая часть Организационно-экономическая часть Охрана труда и защита окружающей среды Список литературы #Чертёж #Dwg #cdw #AutoCAD #Чертежи #Автокад #Проекты #Компас #Расчёты #лифт #расчетлифта #чертежлифта #Курсовой #Дипломный #Проект #Проектлифт #Чертеж #Dwg #drawing #расчет #схема 2d-3d.ru
Скачать готовый проект можете со страницы - https://www.2d-3d.ru/2d-galereia/lift/318-lift-passazhirskij-1000-kg-i-skorostyu-14-ms.html Чертежи и расчёты лифта пассажирского грузоподъемностью 1000 кг и скоростью 1,4 м/с в дипломе Дипломный проект «Лифт пассажирский Q=1000 кг, V=1,4 м/с» Чертежи и расчёты, описание конструкции. Все файлы в редактируемых форматах Автокада и ворда. 110 листов расчётно-пояснительной записки и 11 листов с чертежами. Техническая характеристика лифта с чертежей: Тип пассажирский Грузоподъёмность 1000 кг Скорость движения кабины 1,4 м/с Максимальная высота подъёма лифта 75 м Количество этажей 17. Оригиналы чертежей выполнены в AutoCAD и дополнительно сохранены в Компас. Наименование чертежей входящих в состав дипломного проекта: Содержание расчётно-пояснительной части дипломного проекта: Введение. Проектная часть Конструкторская часть Общий расчет лифта Тяговый расчет лифта Динамический расчет лифта Расчет лебедки лифта Расчет ловителей. Расчет масляного буфера кабины. Расчет механизма привода дверей и дверей шахты. Расчет подвески. Электрическая часть. Выбор электродвигателя Описание принципиальной электрической схемы лифта. Технологическая часть Организационно-экономическая часть Охрана труда и защита окружающей среды Список литературы #Чертёж #Dwg #cdw #AutoCAD #Чертежи #Автокад #Проекты #Компас #Расчёты #лифт #расчетлифта #чертежлифта #Курсовой #Дипломный #Проект #Проектлифт #Чертеж #Dwg #drawing #расчет #схема 2d-3d.ru
