Проект реконструкции ресторана на 100 мест с расчётами технологии приготовления блюд Су-вид Sous Vid
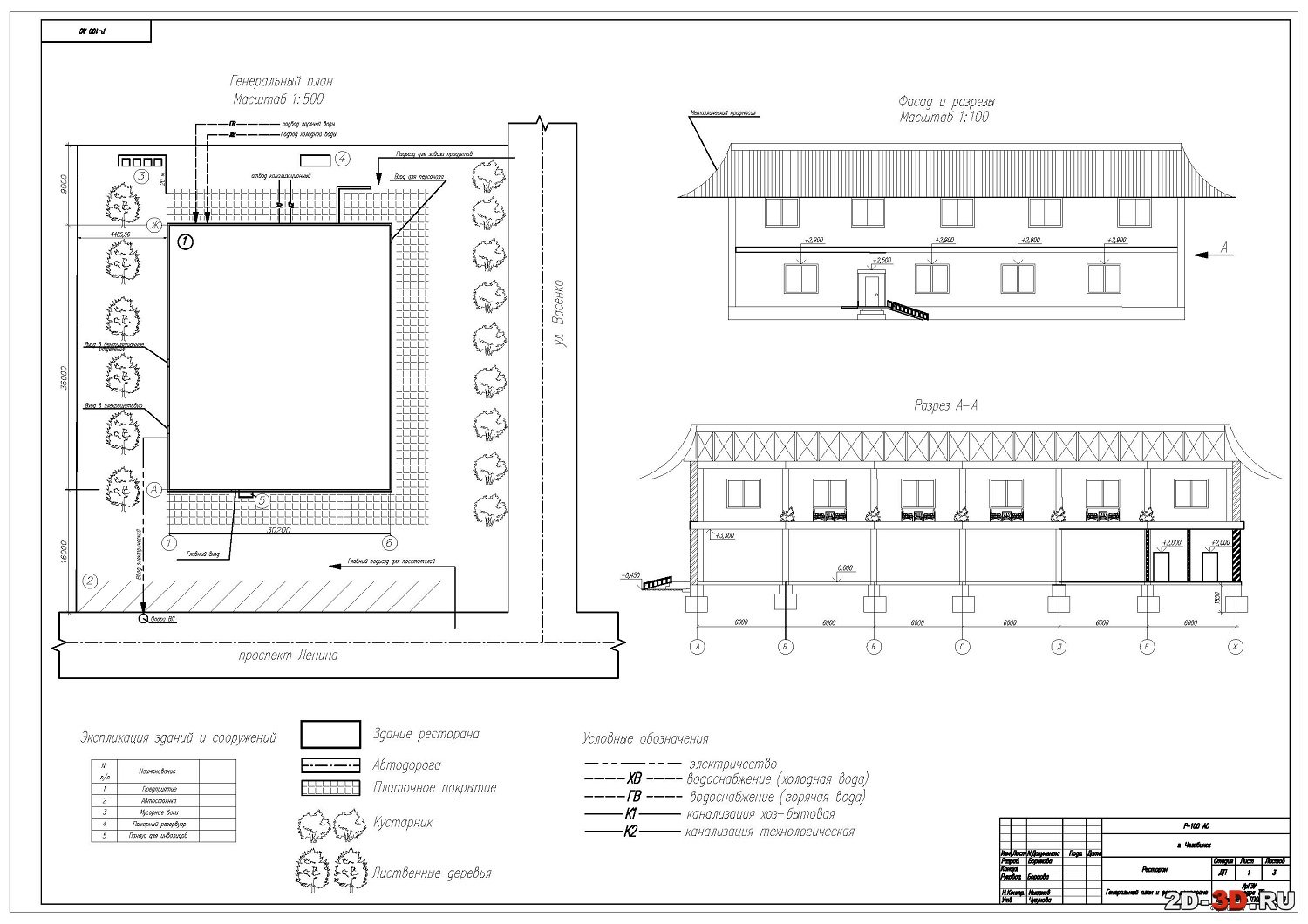
Проект реконструкции ресторана на 100 посадочных мест можно скачать - https://www.2d-3d.ru/2d-galereia/arhitektura_obsh_prom/6428-proekt-rekonstrukcii-restorana-na-100-posadochnyh-mest.html Дипломный проект с расчётами Технология приготовления блюд Су-вид Sous Vide В дипломном проекте расчётно пояснительная записка и чертежи. 1. Характеристика работы ресторана. 2. Расчет производственной программы предприятия. 3. Расчет и подбор технологическое оборудование складских помещений и производственных цехов. 4. Расчет численности производственных работников цехов, и составление графика их работы. 5. Расчет и подбор основного и вспомогательного оборудования горячего цеха. 6. Расчет для реконструкции горячего цеха предприятия, с целью расширения его площади, модернизации его технического оснащения с учетом рассчитанной производственной программы предприятия 7. Объемно-планировочное решение цеха #чертежи #чертеж #AutoCAD #Чертёж #проект #проекты #dwg #Компас #Автокад #dwg #cdw #Расчёты #Расчет #Здание #Гостиница #Студенты #курсовая #курсовой #ВКР #Диплом #Дипломнаяработа #Дипломныйпроект #учёба #Студент #Ресторан #Кафе 2d-3d.ru
Проект реконструкции ресторана на 100 посадочных мест можно скачать - https://www.2d-3d.ru/2d-galereia/arhitektura_obsh_prom/6428-proekt-rekonstrukcii-restorana-na-100-posadochnyh-mest.html Дипломный проект с расчётами Технология приготовления блюд Су-вид Sous Vide В дипломном проекте расчётно пояснительная записка и чертежи. 1. Характеристика работы ресторана. 2. Расчет производственной программы предприятия. 3. Расчет и подбор технологическое оборудование складских помещений и производственных цехов. 4. Расчет численности производственных работников цехов, и составление графика их работы. 5. Расчет и подбор основного и вспомогательного оборудования горячего цеха. 6. Расчет для реконструкции горячего цеха предприятия, с целью расширения его площади, модернизации его технического оснащения с учетом рассчитанной производственной программы предприятия 7. Объемно-планировочное решение цеха #чертежи #чертеж #AutoCAD #Чертёж #проект #проекты #dwg #Компас #Автокад #dwg #cdw #Расчёты #Расчет #Здание #Гостиница #Студенты #курсовая #курсовой #ВКР #Диплом #Дипломнаяработа #Дипломныйпроект #учёба #Студент #Ресторан #Кафе 2d-3d.ru
