Проект с чертежами: Детские ясли-сад на 50 мест с увеличением количества мест на летний период до 95
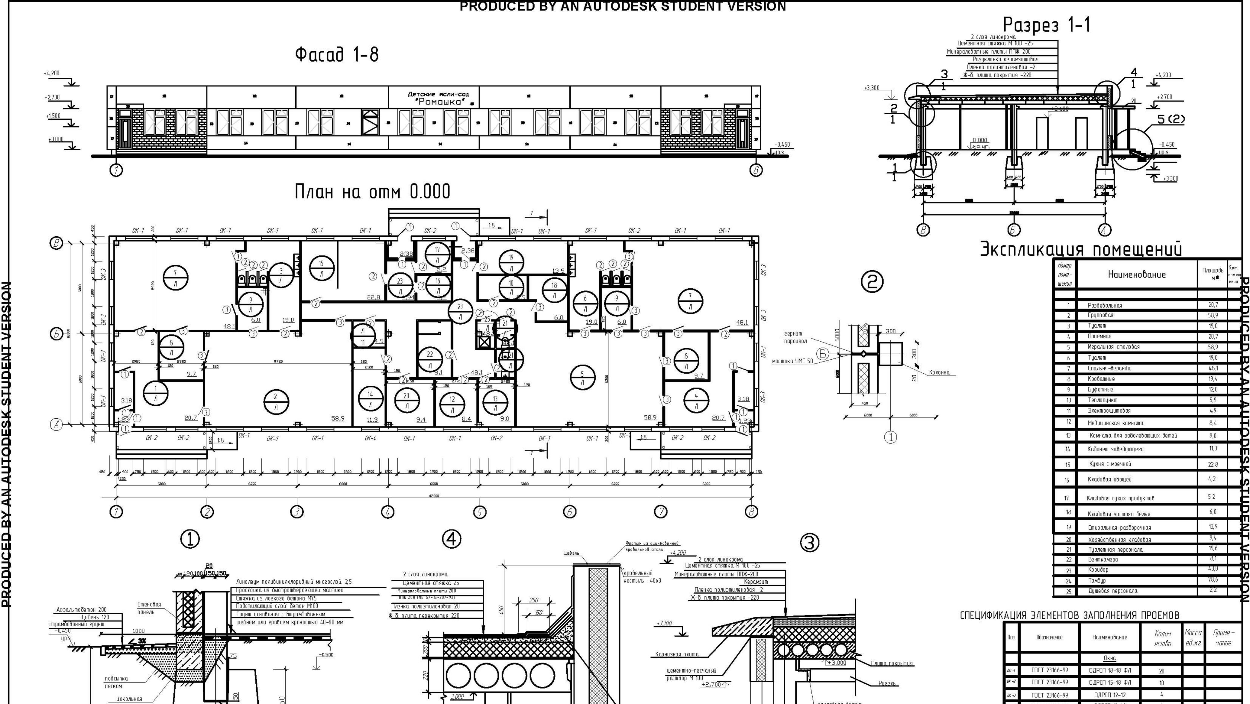
Проект с чертежами и готовой пояснительной запиской можно скачать по ссылке - https://www.2d-3d.ru/2d-galereia/arhitektura_obsh_prom/2249-detskie-yasli-sad-na-50-mest-s-uvelicheniem-kolichestva-mest-na-letniy-period-do-95.html Наименование объекта – детские ясли-сад на 50 мест с увеличением количества мест на летний период до 95. Проектируемое здание располагается на местности со спокойным рельефом, с уклоном на северо-восток. На участке размещаются детские групповые площадки, хозяйственный двор с постройкой, живой уголок, огород-ягодник, фруктовый сад, теневые навесы, грибки, беседки, песочницы и другие малые формы. Участок озеленяется посадкой деревьев, декоративных кустарников, разбивкой клумб и устройством газонов. Планировочная схема здания – коридорная. Групповая, игральная-столовая, медицинские комнаты имеют оптимальную ориентацию. Планировочное решение обеспечивает полную изоляцию групп друг от друга и удобную связь с общим обслуживающими подсобными помещениями. В здании предусмотрено 4 эвакуационных выхода, двери открываются по ходу эвакуации. Конструктивная система - каркасная. Конструктивная схема - с поперечными расположением ригелей. Фундаменты - сборные железобетонные столбчатые стаканного типа с размерами подошвы1200х1200 мм, глубина заложения-1,550мм Колонны - сборные железобетонные сечением 300х300 мм. Прямоугольные консоли колонн размером 150х150 мм являются опорой для ригелей. Колонны крайнего ряда имеют одну консоль, колонны среднего ряда – две консоли. Закладные детали на гранях колонны предназначены для закрепления стеновых панелей. Наружные стены - сборные из трехслойных стеновых панелей двухрядной горизонтальной разрезки толщиной 300 мм. Стыки наружных стен - вертикальные и горизонтальные стыки заделываются цементным раствором, герметизируют прокладкой из пороизола. #Чертёж #Dwg #cdw #AutoCAD #Чертежи #Автокад #Проекты #Компас #Расчёты #Ясли #здание #детскийсад #Курсовой #Дипломный #Проект #Чертеж #Dwg #Dwgформат #диплом #drawing #расчет #фасад #планэтажа #разрезздания #проектздания #сад 2d-3d.ru
Проект с чертежами и готовой пояснительной запиской можно скачать по ссылке - https://www.2d-3d.ru/2d-galereia/arhitektura_obsh_prom/2249-detskie-yasli-sad-na-50-mest-s-uvelicheniem-kolichestva-mest-na-letniy-period-do-95.html Наименование объекта – детские ясли-сад на 50 мест с увеличением количества мест на летний период до 95. Проектируемое здание располагается на местности со спокойным рельефом, с уклоном на северо-восток. На участке размещаются детские групповые площадки, хозяйственный двор с постройкой, живой уголок, огород-ягодник, фруктовый сад, теневые навесы, грибки, беседки, песочницы и другие малые формы. Участок озеленяется посадкой деревьев, декоративных кустарников, разбивкой клумб и устройством газонов. Планировочная схема здания – коридорная. Групповая, игральная-столовая, медицинские комнаты имеют оптимальную ориентацию. Планировочное решение обеспечивает полную изоляцию групп друг от друга и удобную связь с общим обслуживающими подсобными помещениями. В здании предусмотрено 4 эвакуационных выхода, двери открываются по ходу эвакуации. Конструктивная система - каркасная. Конструктивная схема - с поперечными расположением ригелей. Фундаменты - сборные железобетонные столбчатые стаканного типа с размерами подошвы1200х1200 мм, глубина заложения-1,550мм Колонны - сборные железобетонные сечением 300х300 мм. Прямоугольные консоли колонн размером 150х150 мм являются опорой для ригелей. Колонны крайнего ряда имеют одну консоль, колонны среднего ряда – две консоли. Закладные детали на гранях колонны предназначены для закрепления стеновых панелей. Наружные стены - сборные из трехслойных стеновых панелей двухрядной горизонтальной разрезки толщиной 300 мм. Стыки наружных стен - вертикальные и горизонтальные стыки заделываются цементным раствором, герметизируют прокладкой из пороизола. #Чертёж #Dwg #cdw #AutoCAD #Чертежи #Автокад #Проекты #Компас #Расчёты #Ясли #здание #детскийсад #Курсовой #Дипломный #Проект #Чертеж #Dwg #Dwgформат #диплом #drawing #расчет #фасад #планэтажа #разрезздания #проектздания #сад 2d-3d.ru
